Módulo PTM Euro V

Código: 5778/08

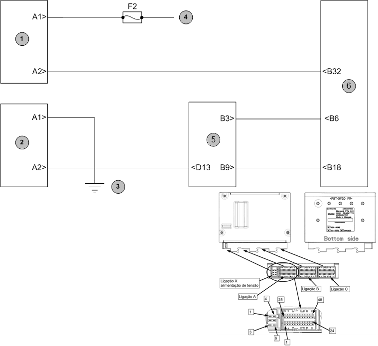
Circuito interruptor superior de embreagem

 

    1 - Interruptor superior do pedal da embreagem

    2 - Interruptor inferior do pedal da embreagem

    3 - Ponto de massa localizado na coluna esquerda

    4 - Linha 15

    5 - Unidade Lógica(LU)

    6 - PTM (Power Train Manager)
  

Descrição da Falha

Circuito do interruptor de embreagem, sinal defeituoso.


 

Indicação de Falha

Luz de alerta acende constantemente em amarelo com símbolo  e ativa o alarme sonoro curto, com o veículo andando ou parado.

 

Estratégia de Monitoramento

O módulo PTM (Power Train Manager) monitora o acionamento do interruptor superior da embreagem.

 

Efeito da Falha

Não há efeito específico para esta falha.


 

Possíveis Falhas

FMI 8: Sinal defeituoso.


 

Aviso

Não avio específico para este código.

 



 

Registros de Falhas em Outros Módulos de Comando

Não.


 

Considerar os esquemas elétricos do veículo


Verificação Medição Eliminação da Falha

Módulo

PTM (Power Train Manager) para o interruptor superior da embreagem


Continuidade do circuito:

Com a chave de ignição desligada

medir:

- Módulo PTM (Power Train Manager) pino B32 para o interruptor superior da embreagem pino A2

- Interruptor superior da embreagem pino A1 para o pino A1 F2



Verificar os cabos quanto a rompimento ou oxidação.

Verificar as conexões quanto a mau contato ou pino torto.

- Caso nenhuma falha seja verificada, substituir
o interruptor superior de embreagem

- Caso nenhuma falha seja verificada, substituir o módulo
PTM (Power Train Manager).





Interruptor superior de embreagem 


Com a chave de ignição ligada
medir:

Meça tensão entre o pino A1 do F2 para o massa, que deve ter 24V.

 


Topo da Página