Descrição da Falha
Circuito rede CAN módulo TCU (módulo da transmissão), sinal defeituoso.
Indicação de Falha
Luz de alerta acende constantemente
com os símbolos
e e
ativa o alarme sonoro longo, com o veículo andando ou parado.
Estratégia de Monitoramento
O
módulo monitora rede CAN módulo TCU (módulo da transmissão).
Efeito da Falha Indicação com o veículo em movimento ou parado. Apenas aviso de falha.
Possíveis Falhas FMI 04: Sem sinal
FMI 08: Sinal defeituoso
Aviso
 Não há
aviso específico para este código.
Registros de Falhas em Outros
Módulos de Comando
Não.
Considerar os esquemas
elétricos do veículo
| Verificação
|
Medição |
Eliminação da
Falha |
|
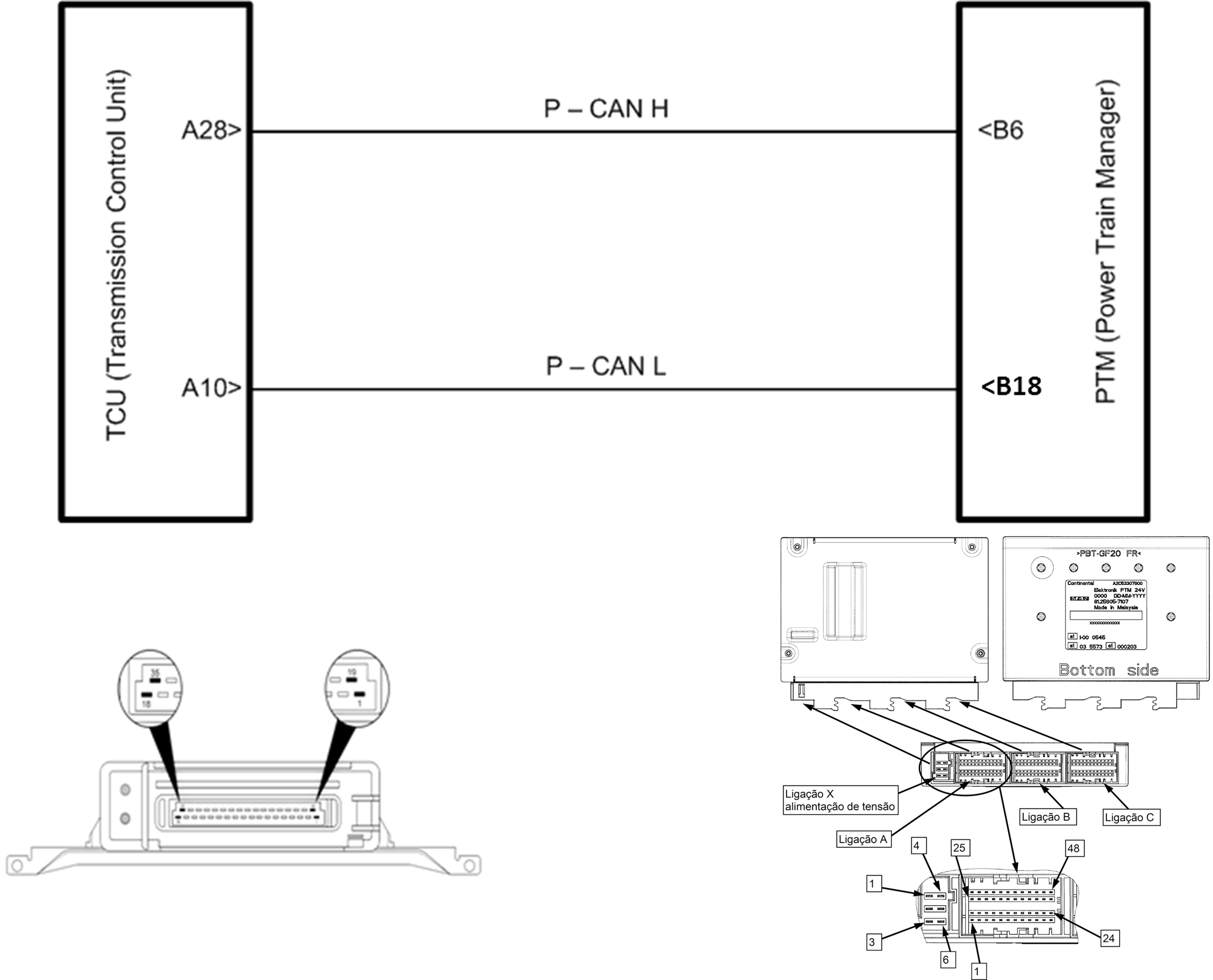
Circuito rede CAN módulo TCU
|
Continuidade
do circuito:
- Módulo TCU A28 para B6 da PTM via rede P-CAN H
- Módulo TCU A10 para B18 da PTM via rede P-CAN L
|
– Verificar as conexões
quanto a mau contato ou pino torto.
- Caso nenhuma falha
seja verificada, substituir o módulo PTM (Power Train Manager).
|
|