Módulo EDC7 Euro V

Lista de etapas de verificação hidráulica.

Descrição dos aparelhos.

 


Generalidades sobre a identificação de falhas

Antes de executar os trabalhos no sistema Common Rail, salvar todas as falhas presentes e passadas do módulo EDC7. São informações que podem ser úteis no futuro e servirão como registro histórico do ocorrido. O sensor da pressão do Common Rail, válvula limitadora de pressão, unidade de medição e bomba de engrenagens (bomba de alimentação) podem ser obtidos como peças individuais e podem também ser substituídos individualmente.


Na identificação de falhas nos sistemas EDC7 deve ser feita a diferenciação entre dois tipos de falha:

– Falha no sistema de combustível (do lado da baixa pressão ou do lado da alta pressão).

– Falha no sistema elétrico; Quando um motor com gerenciamento feito pelo módulo EDC7 não pegar, embora seja acionado pelo motor de arranque, não faz qualquer sentido tentar colocar o motor em funcionamento através de uma operação de reboque. É melhor conectar a MCO-08, proceder à leitura da memória de falhas e verificar através de "Monitorização", se a unidade de comando EDC reconhece sinais de rotação e, se é gerada a pressão do Common  Rail.


Assim, aplica-se a seguinte regra:

– Quando faltam ambos os sinais de rotação (virabrequim do motor e comando de válvulas), os injetores são desativados e nenhum combustível será ministrado ao motor.

– No caso de uma baixa pressão, menor que 3 bar, não é gerada pressão no sistema Common Rail.

– A uma pressão do Common Rail maior que 200 bar, não são acionados os injetores.

.

Mas é válido também:

– Sem combustível (reservatório vazio) não há injeção.


Catálogo de perguntas em caso de problema:

Procedimentos:

– Salvar a parte a memória de diagnóstico completa de todos os módulos do veículo.

– Proceder a uma identificação exata de cada falha com a ajuda da Lista SPN e do Programa de localização de falhas. 

– Alimentação de combustível assegurada? Pressão no circuito de baixa pressão corresponde às especificações? Consultar a lista de etapas de verificação do sistema hidráulico.

– Realização de um controle do sistema elétrico. Consultar a lista de etapas de verificação do sistema elétrico.


Perguntas adicionais

– O módulo está recebendo tensão da bateria? 

– É possível se realizar um diagnóstico via MCO-08?


Quando ocorre a falha?

– Na hora de se ligar/desligar ou durante o funcionamento normal do motor. 

– Em que amplitude de rotações do motor.

– Em que velocidade de caixa ou durante qual mudança de marcha.

– Ao se efetuar uma aceleração ou durante uma desaceleração brusca. 

– O problema ocorre continuamente ou apenas esporadicamente. 

– Duração (valor aprox. em milésimos de segundo, segundos, minutos...).

– Apenas em determinadas circunstâncias ambientais como frio/calor/umidade.

– Em subidas e/ou descidas – Situação de carga do veículo. Veículo com carga (quanto?) ou vazio. 

– Combustível utilizado (Diesel, Biodiesel, querosene, etc). 

– Existem dados sobre: Temperatura do óleo / temperatura da água de arrefecimento / temperatura do ar de admissão.

– Foi detectado um aumento ou diminuição substancial do nível do óleo.

– Comportamento do motor: Rotação instável/funcionamento irregular/«motor engasgando, quadrado»/falha de ignição, fumaça negra, fumaça azul, fumaça branca. 

– Comunicações de falha no painel de instrumentos (cluster) – Existem outras falhas, que não estão diretamente relacionadas com o problema (falhas da PTM, ABS, LU, TCU, etc). 

– Existem outras falhas, que não estão diretamente relacionadas com o problema (falhas da PTM, ABS, LU, TCU, etc.) 

– Caso o motor não pegue, embora o motor de arranque esteja OK: O motor pega mesmo quando a válvula proporcional de combustível MProp da bomba de alta pressão foi desconectada eletricamente?

Nota!

Uma abertura forçada e repetida da válvula limitadora de pressão para efeitos de verificação (através de desconexão elétrica da válvula proporcional de combustível MProp) induz forçosamente à diminuição da pressão de abertura da válvula limitadora de pressão. Poderá ser necessário substituir a DBV (válvula limitadora de pressão do Common Rail).

– A temperatura do módulo é maior que 100 °C? Proceder à leitura da temperatura máxima utilizando o MCO-08 

– Óleo no chicote dos bicos injetores? Podem ocorrer também as falhas SPN 0651 a 0656, curtos-circuitos devido ao óleo do motor.

 – Foram verificados os chicotes do módulo (pinos mal conectados/tortos, contatos soltos, etc.)?

– Foi verificado se, tanto o sensor de rotação do virabrequim como o sensor de rotação do comando de válvulas estão emitindo sinais corretos? A polarização elétrica está correta? Estado das superfícies frontais dos sensores; distância de montagem: entre 0,5 e 1,5mm.

– Verificar os sinais de rotação no menu "Monitorização" via MCO-08.


Nota!

Em caso de ausência de sinal de rotação do virabrequim, nenhuma alteração do indicador de barras no MCO-08. Por isso, atenção às informações na memória de falhas – Comunicações de estado na monitorização de rotações com o sistema:
«é efetuada uma sincronização», «nenhuma falha», «estado normal» Falhas frequentes e instruções para a sua resolução; Se forem apresentados as falhas 3775-2, 3776, 3777, 3778, 3779, 3780, 3781 individualmente ou associados deverá proceder-se da seguinte forma:

Nota!

As falhas 94-1 ou 94-2 não podem ser apresentadas aqui.

Ter em atenção as Instruções de Serviço 252400, 298100 e 334700.


Passo 1:

– Verificar os condutores e conectores elétricos para a unidade de medição e para o sensor de pressão do Common Rail

– Quando, além do SPN 3781, não existir outro registro de falha: Muito provavelmente não existe qualquer falha elétrica, e sim uma pressão excessiva no tubo de retorno para o reservatório de combustível. Efetuar a medição da pressão, se possível na proximidade da Unidade Gerenciadora de Combustível. Valor nominal: menor que 0,2bar.

Em todas as falhas em que a DBV (válvula limitadora de pressão) é aberta (p. ex. SPN 3777, 3781), a causa da falha também poderá ser um tubo de retorno obstruído (p. ex. tubo dobrado, etc.) para o reservatório de combustível (no caso de bombas lubrificadas pelo próprio combustível).

Passo 2:

 – Quando em marcha lenta e com o motor aquecido (líquido de arrefecimento no mínimo a 70 °C) for detectado um valor elevado de saída do regulador de pressão do Common Rail, na ordem dos 10-14%, substituir a unidade de medição.

– Caso não haja uma alteração de valor menor que 6%, voltar a montar a unidade de medição original e prosseguir com o passo 3.

Passo 3:

 – Medir o volume da fuga dos bicos injetores e da válvula limitadora de pressão.

– Se a quantidade for excessiva, verificar a estanqueidade da válvula limitadora de pressão (a válvula limitadora de pressão tem que ser estanque, é admissível uma fuga de poucas gotas).

– Em caso de fuga, substituir a válvula limitadora de pressão e repetir a medição da quantidade total de fuga. Controle do valor de saída do regulador de pressão do Common Rail, verificar se menor que 6%.

– Caso a DBV (válvula limitadora de pressão) se apresentar com boa vedação ou poucas gotas, medir as fugas individuais de cada um dos injetores.

Passo 4:

 Caso no passo 2 seja detectado um valor de saída do regulador de pressão do Common Rail entre 6 e 10%:

– Substituir agora a unidade de medição.

Para excluir temporariamente uma unidade de medição bloqueada levar em consideração as instruções da unidade de medição.

Passo 5:

Substituir o sensor de pressão do Common Rail (apenas para SPN 3781)

Passo 6:

– Medir a descarga da bomba de alta pressão

Se a quantidade for demasiado reduzida:

– Substituir a bomba de alta pressão.

 

Nota: A bomba de alta pressão e a válvula proporcional de combustível MProp (unidade de medição) são forjadas em conjunto no processo de produção. Por esse motivo, utilizar sempre uma válvula proporcional de combustível MProp sobresselente para este teste. Nunca utilizar a válvula proporcional de combustível MProp de outra bomba de alta pressão (por exemplo, de outro veículo).

Uma válvula proporcional de combustível MProp em funcionamento regula numa amplitude bastante estreita, ou seja, o valor percentual apresentado na monitorização varia em marcha lenta apenas uns poucos décimos de pontos de percentagem. Se o valor saltar vários pontos de percentagem, será considerado que a válvula proporcional de combustível MProp esteja bloqueada.


Nota 1: A transição de CP3.4+ para CP3.4+ com pacote de lubrificação (Anti Wear Package) não depende do tipo de motor, é efetuada sim em função do consumo. Para a oficina isto significa: que é necessário observar primeiro a bomba, e que válvula proporcional de combustível MProp padrão está instalada, para poder ligar à válvula proporcional de combustível MProp sobresselente adequada.

Indicações gerais relativamente à localização de falhas no circuito de combustível

Procedimento para quando existe «dificuldade de partida do motor»

Deve se ter em mente que o sistema Common Rail tem tempos de partida mais longos que um sistema EDC com um sistema de bomba injetora. Num sistema Common Rail, para cada partida do motor é necessário gerar primeiro a pressão nos sistemas de baixa e de alta pressão. Daqui resulta que os tempos de partida do motor poderão ser de até 3 segundos.

Caso um motor Common Rail necessite de substancialmente mais tempo para arrancar, diversos tipos de falha poderão estar na origem do problema:

– Fuga no sistema de combustível

No sistema Common Rail, quando parado, não existe separação entre alimentação e retorno, uma fuga em qualquer ponto do sistema de combustível conduz ao esvaziamento do sistema de combustível. Implicação: tempos de arranque prolongados (até 30 seg.) Com a introdução de uma paragem de retorno (acoplamento rápido «verde» na tubagem de alimentação, no ponto de transferência motor/chassi) foi possível melhorar significativamente o comportamento de arranque: Tempo de arranque agora apenas de aprox. 2 segundos.

– Válvula de descarga na bomba de alta pressão: Defeito, fuga, corpo estranho no ponto de vedação.

– Orifício de ventilação no KSC sujo ou não existente, consequentemente mensagem de falha: 94-2, ou seja, pressão de alimentação de combustível muito baixa.

Sintomas: Os problemas de arranque ocorrem na maioria dos casos após a substituição do elemento do filtro. Quando o circuito de baixa pressão é bombeado com a bomba de alimentação manual, o motor arranca de forma relativamente normal. Poucos minutos após a paragem do motor voltam a surgir problemas de arranque.

Causa: Devido à ausência ou à sujidade no orifício de ventilação, permanece no KSC uma almofada de ar. Após desligar o motor, esta volta a expandir-se e pressiona o combustível para fora do KSC. Por conseguinte, no processo de arranque demora muito tempo até que ser gerada pressão no combustível do lado da baixa pressão.

Procedimento para quando o «Motor não arranca»

– Em caso de interrupção na CAN do motor, problema de chicote para o IMR (relé do motor de partida), defeito do IMR (relé do motor de partida) ou problemas no chicote para o terminal 50 do PTM (Power Train Manager) o motor de arranque não arranca.

– Em caso de ID (código de identificação) Imobilizador falso, o motor não é acionado pelo motor de arranque. No display surge o símbolo «Imobilizador de arranque ativado»

– Sem sinal de rotação do sensor do virabrequim e do comando de válvulas, o motor roda o motor de arranque durante 900ms e aborta então o arranque com «reconhecimento de comutação cega».

– Em caso de formação de par EDC/PTM falsa, o motor é rodado pelo motor de arranque, mas a injeção não é ativada pelo módulo EDC (o motor não arranca).

– Em caso de falhas no registro de rotações do sistema de virabrequim, o módulo EDC7 tenta, através de "injeções experimentais" na mudança de PMS da ignição e aceleração, determinar o PMS da ignição (maior aceleração de rotação do volante do motor durante a ignição) e, desta forma, arrancar o motor apenas com o sistema de rotação da cambota do motor. O resultado é um tempo de arranque mais prolongado.

Quando um motor gerenciado pelo módulo EDC7 não arranca, embora seja rodado pelo motor de arranque, não faz qualquer sentido tentar colocar o motor em funcionamento através de uma operação de reboque. É melhor ligar o MCO-08, proceder à leitura da memória de falhas e verificar através de «Monitorização», se a unidade de comando EDC reconhece sinais de rotação e, se é gerada pressão do Common Rail.

Assim, aplica-se a seguinte regra:

– Quando ambos os sinais de rotação estão em falta (comando de válvulas e virabrequim), não é injetado qualquer combustível.

– No caso de uma baixa pressão menor que 3 bar não é gerada pressão no Common Rail.

– A uma pressão do Common Rail menor que 200 bar não são acionados os injetores.

Mas é válido também:

– Sem combustível (depósito vazio) não há injeção

Uma ativação do injetor verifica-se apenas quando a pressão efetiva do Common Rail é maior que 200bar, ou seja, com uma pressão efetiva demasiado baixa o motor não arranca. O fato desta pressão efetiva do Common Rail não ser atingida poderá ter como causas os seguintes aspectos:

– Ar no sistema de baixa pressão / filtro de combustível, realizar um ensaio de estanqueidade.

– Após substituição do filtro de gasolina não foi feito a sangria do ar de forma correta.

– Pré-bomba de alimentação defeituosa e não gera qualquer pressão primária, verificar a linha de baixa pressão.

– Válvula de descarga na bomba de alta pressão avariada, não há estanqueidade. Verificar a linha de baixa pressão.

– Quantidade total de fuga dos injetores e válvula limitadora de pressão nas condições de arranque em questão.

– Fuga entre o Common Rail e o injetor, verificar ensaio de estanqueidade para retorno de óleo de fuga dos injetores. Em caso de fuga: Substituir bocais de tubos de pressão.

– Injetor danificado (não fecha), verificar ensaio de estanqueidade para retorno do óleo de fuga dos injetores.

– Bomba de alta pressão danificada (verificar capacidade de alimentação da bomba).


Procedimento

Passo 1:

 – Caso seja apresentada a falha 94-1 ou 94-2, isto significa que existe uma falha no sistema de baixa pressão. Inspecionar o sistema de baixa pressão.

Passo 2:

– Verificar o acréscimo de pressão no Common Rail durante o processo de arranque, utilizando a MCO-08.

– Caso não ocorra o acréscimo de pressão, maior que 350bar, prosseguir com o passo 3.

– Se a pressão do Common Rail estiver correta, existe uma falha elétrica (memória de falhas, lista de etapas de verificação ou ensaio de compressão com a MCO-08).

Passo 3:

– Medir o volume da fuga dos injetores e da válvula limitadora de pressão.

– Se a quantidade for excessiva, verificar a estanqueidade da válvula limitadora de pressão (a válvula limitadora de pressão tem que ser bem vedada, admite-se uma fuga de poucas gotas).

– Em caso de fuga, substituir a válvula limitadora de pressão e repetir a medição da quantidade total de fuga.

– Se a quantidade total de fuga for admissível, prosseguir com o passo 5.

Passo 4:

– Medir as quantidades individuais de fuga dos injetores.

– Em caso de avaria do cilindro, soltar as tubulação de pressão e voltar a apertar.

– Caso a quantidade de fuga individual ainda seja elevada, substituir o injetor e o tubo de pressão.

Passo 5:

– Montar a unidade de medição sobresselente a título experimental.

– Caso o resultado não seja positivo, substituir a bomba de alta pressão.


- mesmo válvula proporcional de combustível MProp - de caracteristicas diferentes.
Solução:

– Ligar o motor com a válvula proporcional de combustível MProp desconectada.


Quando este arranca:
– Lavar o sistema de combustível com Diesel de qualidade e fazer um teste de rodagem extensiva com diesel.
– Realizar teste de aceleração com combustível diesel. Se o resultado do teste for bom, recomendar então ao cliente a utilização futura de combustível diesel de qualidade, dado que o combustível que costumava utilizar poderá voltar a provocar o mesmo dano.
– Se o motor não arrancar ou apresentar um funcionamento irregular após um curto espaço de tempo é necessário substituir os injetores. Também neste caso, recomendar ao cliente a utilização futura de combustível diesel de qualidade, dado que o combustível anteriormente utilizado poderá voltar a provocar o mesmo dano.

Procedimento em caso de «sobrepressão no depósito de combustível»

Caso o condutor reclame que ao abrir o tampão do depósito há pressão em excesso «dispara» o tampão e que do bocal é expelido gás de combustão, a causa do problema é provavelmente a seguinte: Um dos injetores na cabeça do motor ficou frouxo e, consequentemente, gases de combustão são conduzidos para o sistema de óleo de fuga e através da tubulação de óleo de fuga para o depósito.


Solução:

– Desmontar a tampa da válvula e inspecionar os injetores quanto a um eventual rompimento do flange de pressão.
– Desmontar o injetor afetado.
– Substituir os anéis de vedação, flange de pressão e tubulações de pressão.
– Voltar a montar o injetor de acordo com as respectivas instruções.
Nota: Caso a vedação do injetor apresente uma fuga, juntamente com os gases de combustão é conduzida também fuligem de combustão para o depósito de combustível. Conforme o tempo em que se seguir circulando com esta falha, será acumulada mais ou menos fuligem para o combustível, a qual irá bloquear o filtro de combustível. Por este motivo o veículo acabará parando de vez. Assim, recomenda-se o seguinte procedimento: Nos primeiros dois meses após a reparação efetuar uma substituição semanal do filtro de combustível. Em casos extremos será necessário remover totalmente o combustível do depósito e abastecer com combustível novo e de qualidade. Por vezes também será necessária uma limpeza interna do depósito.

Procedimento quando o «motor expele fumaça branca»

Em caso de reclamação de que o «motor expele fumaça branca» a causa raramente será uma falha no sistema Common Rail.
Por isso, neste caso, verificar sempre primeiro a estanqueidade do sistema de partida:
– Desmontar a tubulação de combustível entre a válvula solenoide.
Se, após este procedimento o motor continuar a expelir fumo branco, então proceder conforme indicado para uma reclamação de «funcionamento irregular do motor».

Procedimento para quando o «Motor expele fumaça negra»

Primeiramente, é necessário identificar em que estado de funcionamento ocorre a formação de fumaça preta:
– O motor gera sempre fumaça preta?
– O motor gera fumaça preta apenas na aceleração?
Foram identificadas até à data as seguintes causas possíveis:
– Falha de montagem, injetor espanado.
– Fuga entre a câmara de combustão e óleo de fuga, vedação inferior do injetor (anel de vedação em cobre) com vazamento.
– Desgaste dos injetores (elevada quantidade de fuga).
– Sobreposição de injetores incorreta
Quando, durante uma viagem de ensaio é de fato detectado fumaça preta, recomenda-se o seguinte procedimento:
– Proceder à consulta da memória de falhas do módulo EDC7
– Caso se encontrem registros de falhas, proceder de acordo com as instruções de identificação de falhas e repetir o teste de rodagem.
Se continuar a ser expelida fumaça preta, mas não houver uma falha registrada na memória de falhas:
– A experiência demonstrou que, nos motores com pouca quilometragem, pode ser gerada fumaça preta devido a injetores montados com tensão.
Ajuda: Afrouxar todas as fixações de tubos de pressão e injetores e, em seguida, voltar a apertar as mesmas de acordo com as instruções. Caso este procedimento não seja bem sucedido, a causa da formação de fumaça, em especial durante a aceleração, poderá estar relacionada com um desgaste dos injetores.

Em seguida, efetuar medições individuais das quantidades de fuga e substituir os injetores afetados.
– No caso de danos anteriores no turbo poderá ocorrer também uma alimentação de óleo no tubo de escape. Isto também poderá originar fumaça preta ao acelerar.
Solução: Substituir o tubo de escape.
Se, ainda assim, o motor continuar a gerar fumaça preta:
– Realizar o teste de aceleração, no mínimo, duas vezes.
Caso o teste de aceleração não revele problemas:
– Desmontar todos os injetores
– Inspecionar a vedação na zona dos injetores (anel de vedação em cobre) quanto a eventuais resíduos de fumaça
– Verificar o diâmetro dos anéis (de cobre) de vedação
Caso seja detectado que um ou mais injetores apresentam fuga e/ou os anéis de vedação em cobre têm um diâmetro excessivo:
– Substituir os anéis de vedação e tubulações de pressão, e voltar a montar os injetores.
– Efetuar uma viagem de ensaio
Caso continue a ser expelida fumaça preta ou não seja detectada qualquer fuga na vedação inferior do injetor:
– Substituir todos os injetores e tubulações e montar com novos anéis de vedação, de acordo com as instruções.
Nota: Caso a vedação do injetor apresente uma fuga, juntamente com os gases de combustão é conduzida também fuligem de combustão para o depósito de combustível. Consoante o tempo que se conduzir com esta falha, será conduzida mais ou menos fuligem para o combustível, a qual irá bloquear o filtro de combustível do KSC. Por este motivo o veículo acabará por parar. Assim, recomenda-se o seguinte procedimento: Nos primeiros tempos após a reparação proceder a uma substituição semanal do filtro de combustível. Em casos extremos será necessário purgar a totalidade do combustível do depósito e abastecer combustível novo. Por vezes é também necessária uma limpeza do reservatório.

Procedimento em caso de «batimento do motor»

Em caso de reclamação de «batimento do motor» na maioria dos casos a causa está associada a uma falha de injetor. Por isso, neste caso, proceder a um teste de compressão e aceleração.
Nota: Realizar o teste de aceleração apenas com o motor quente, pois caso contrário poderá ser obtido um diagnóstico incorreto. Se a falha não for detectável através do teste de aceleração ou se o motor estiver demasiado frio para o teste de aceleração, com o motor ligado desconectar os cilindros individuais recorrendo à caixa de ligações e procurar assim o injetor danificado.
Alternativas:
– Desconectar uma após a outra as ligações de cada cilindro individual diretamente no injetor, voltar a montar a tampa da válvula e ligar o motor.
– Futuramente existirá a possibilidade de desligar cilindros individuais com a MCO-08

Procedimento em caso de «detonação do motor»

Em caso de reclamação de «detonação do motor» na maioria dos casos a causa está relacionada com um dano mecânico (dano na válvula, travamento, etc.). Por isso, neste caso, realizar o teste de compressão.

Procedimento em caso de «funcionamento irregular do motor»

Caso sejam apresentadas reclamações de:
– Funcionamento irregular do motor
– Ruídos de funcionamento anormais
– Falta de potência do motor
– Fumaça branca e funcionamento irregular do motor entre a rotação de marcha lenta e a rotação de 1100rpm durante a fase de aquecimento
Deverá proceder-se da seguinte forma:
– Atualizar o módulo EDC (consultar Informação de Serviço 249800)
– Realizar o teste de compressão

Indicação de defeito mecânico, por ex., válvula danificada ou travamento
– Realizar o teste de aceleração

Indicação de defeito nos injetores, quando depois de efetuado o teste de compressão o motor é classificado como OK:
– Caso não seja detectada a causa através do teste de compressão e aceleração, colocar a caixa de conectores, desligar os injetores individuais e procurar o cilindro de onde provém o ruído anormal.
Condições de verificação: Temperatura do líquido de arrefecimento, no mínimo a 75 °C. Realizar sempre primeiro o teste de compressão. Após realizar o teste de aceleração «desligar a ignição» e, em seguida, verificar as quantidades  (código de identificação) de correção. É importante também que durante o teste o compressor de ar ou o ventilador não seja ligado.
Indicações adicionais: Em caso de pressão demasiado elevada na linha de retorno (maior que 0,2bar) poderão surgir problemas com a regulação de pressão do Common Rail. Importante: A pressão de retorno tem que ser medida próximo do motor!

Não é possível efetuar um diagnóstico através do MCO-08. É possível efetuar um diagnóstico através de uma ferramenta especial para ligação de um manômetro (peça em T), adequada para todos os motores Common Rail.


Danos no restritor do Common Rail

Nos veículos com motor Common Rail pode suceder que um ou mais orifícios redutores (em cada saída para os injetores no Common Rail) fiquem frouxos, se desloquem ou partam. A consequência do dano é um injetor defeituoso. Se o dano no orifício redutor do Common Rail não for detectado ou reparado, o novo injetor também será destruído!
Efeitos/consequências: Injetor danificado, fragmentado, partido, funcionamento irregular do motor, fumaça preta, consumo de combustível excessivo, danos repetidos no injetor.
Detecção: Em caso e dano no injetor com os sintomas acima descritos, verifique também, com a tubulação de injeção desmontada, os elementos dos orifícios redutores no Common Rail, através de uma comparação visual. Uma verificação com "broca" está interdita, pois existem diferentes modelos de Common Rail com diferentes diâmetros de orifício e, consequentemente, existe perigo de infiltração de sujeira e danificação.
Ajuda: Substituir o Common Rail completo e, relativamente aos cilindros afetados (com orifício redutor danificado) substituir adicionalmente todas as componentes seguintes (tubo de injeção, bocal do tubo de pressão, injetor). A experiência demonstrou que não é necessário substituir também as componentes dos outros cilindros.

Mala de diagnóstico para motores Common Rail

A mala de diagnóstico existe em diversas variantes de equipamento:
– A mala standard LE-MAN02 contém tudo o que é necessário para a verificação de todos os motores em linha MAN-CR (ou seja, o conteúdo da variante anterior a 08/2007, incluindo o kit suplementar LE-MANEK01).
ID (código de identificação)


Identificação de falhas no sistema de baixa pressão.

Em caso de problemas de partida, reclamação de falta de potência e/ou pressão insuficiente no Common Rail deverá ser medido (código de identificação) em primeiro lugar a pressão no sistema de baixa pressão.
Verificar a pressão do combustível antes do filtro, utilizando a Monitorização MCO-08.

1. A pressão do combustível em marcha lenta é de, no mínimo, 5,5 bar?

Em caso afirmativo:

Prosseguir para o ponto 2

Em caso negativo:

Se a pressão do combustível for inferior a 5 bar, verificar a unidade de extração no depósito de combustível e a tubulação para a bomba de alimentação quanto à estanqueidade

Se a pressão do combustível for superior a 8,5 bar, substituir o filtro de combustível e voltar a efetuar a medição

2. A pressão do combustível agora está correta?

3. A válvula limitadora de pressão (DBV) apresenta-se estanque com o motor em funcionamento? (é permitida a fuga de algumas gotas)

Em caso afirmativo:

Prosseguir para o ponto 4

Em caso negativo:

Realizar um ensaio de estanqueidade da válvula limitadora de pressão (DBV)

Substituir a válvula limitadora de pressão

4. Realizar um Controle de funcionamento da válvula de descarga da bomba de alta pressão. Valor nominal menor que 4 bar


Verificação da válvula de descarga

Esta válvula de descarga (ver pos. 13 no esquema geral de combustível) limita/regula a pressão inicial no circuito de baixa pressão. Pressão de abertura em marcha lenta do motor (dinâmico): 5,5 a 6,0 bar Valor nominal com o motor parado (estático): aprox. 4 bar A sua capacidade de funcionamento tem uma grande influência sobre o comportamento de partida. A partir do Euro 4 passaram a ser montadas bombas lubrificadas a combustível com circuito interno de aquecimento parcial. Por isso, apenas é possível efetuar a verificação da válvula de descarga após ser desmontada a bomba de alimentação.

Procedimento para bombas de alta pressão lubrificadas a óleo:
– Desligar o condutor do KSC (central de tratamento do combustível) para a bomba de alta pressão diretamente na bomba de alta pressão e montar o adaptador de verificação com manômetro, amplitude de medição 0 a 10bar.
– Na ligação «OUT» da bomba de alta pressão, retirar a tubulação de retorno do circuito parcialmente aquecido e fechar com um tampão.
– Com a bomba manual aumentar a pressão no circuito de baixa pressão até que a válvula de descarga se abra e saia combustível na ligação «OUT».
– Durante o processo de bombeamento ler a pressão de abertura no manômetro. Valor nominal estático, aprox. 4bar.

Procedimento para bombas de alta pressão lubrificadas a combustível:
Conforme anteriormente referido, a partir do Euro 4 passou a ser montada uma bomba de alta pressão lubrificada a combustível. Estas bombas têm um circuito interno parcialmente aquecido (código de identificação). Não é possível verificar a válvula de descarga na ligação «OUT» conforme anteriormente descrito.
– Desligar o condutor do KSC (central de tratamento do combustível) para a bomba de alta pressão diretamente na bomba de alta pressão e montar o adaptador de verificação com manômetro, amplitude de medição 0 a 10bar.
– Com a bomba manual aumentar a pressão no circuito de baixa pressão até que a válvula de descarga se abra.
– Durante o processo de bombeamento ler a pressão de abertura no manômetro. Valor nominal estático, aproximadamente (4 bar).
– Em caso de suspeita de fuga substituir a válvula de descarga (13) e voltar a verificar.

Verificação da válvula de manutenção de pressão:
Esta válvula (ver pos. 11 no esquema geral de combustível, bomba de alta pressão lubrificada a óleo) assegura uma pressão dinâmica relativa de aprox. 1,2 a 1,4bar no retorno de óleo de fuga dos injetores. A sua capacidade de funcionamento não tem qualquer influência sobre a partida do motor (código de identificação), sendo apenas necessária para o bom funcionamento dos injetores com armadura de peça única.
A válvula de manutenção de pressão só é montada para CRIN2 com armadura de peça única. A partir do início da série D20 Euro 4 (10/2004) passou a ser montado -6064 (armadura de duas peças). E este continua a ser preferivelmente montado no Euro 4 OBD LF31... e no Euro 5 LF21... Logo, nestes motores não se monta a válvula de manutenção de pressão.
Para a verificação da válvula de manutenção de pressão é necessário que a mesma seja desmontada. É importante que a válvula abra e não se encontre bloqueada.


Identificação de falhas no sistema de alta pressão.

A condição básica para o funcionamento do sistema de alta pressão é um sistema de baixa pressão sem falhas. Em caso de suspeita de uma falha no sistema de alta pressão é recomendada em primeiro lugar uma verificação da estanqueidade da zona de alta pressão através da quantidade de fuga.

Verificação da quantidade de fuga.
É normal no sistema o refluxo do óleo de fuga. No entanto, através da quantidade por unidade de tempo podem ser obtidas conclusões importantes para a identificação de falhas. Por norma, deve ser feita a diferenciação entre o óleo de fuga com o motor em funcionamento e aquele durante a fase de partida. Além disso, deve ser tido em consideração se o motor se encontra equipado com um sistema de partida por incandescência ou não.
Nos motores MAN Common Rail, o óleo de fuga que flui de volta para o depósito é composto pelos seguintes subconjuntos:
– Quantidade permanente de ventilação do KSC (central de tratamento do combustível)
– Óleo de fuga da zona dos injetores
– Óleo de fuga da válvula limitadora de pressão, quando esta não se apresenta estanque (avaria).
– Quantidade no estado inicial de partida da válvula limitadora de pressão para o sistema de partida por incandescência.

Nota:
A saída de apenas algumas gotas de combustível é admissível com o motor em funcionamento.

Para a identificação de falhas é importante diferenciar a origem da eventual quantidade acrescida de óleo de fuga. Para permitir uma avaliação rápida sem um longo período de inatividade, são apresentados em seguida métodos de verificação relativamente simples e, como orientação, as quantidades de óleo de fuga de motores em funcionamento. Dado que, cada sistema Common Rail é muito sensível a sujidade, foram desenvolvidos métodos de verificação para os quais não é necessário abrir o lado limpo da zona de baixa pressão nem o sistema de alta pressão. Apenas para uma única medição é necessário desmontar as tubos individuais de alta pressão.

Nota:
Após realizados os trabalhos de verificação, sempre apagar a memória de falhas.
Medição da quantidade total de fuga:
A quantidade total de fuga corresponde à quantidade de combustível dos injetores e da válvula limitadora de pressão que retorna para o reservatório de combustível em velocidade de rotação em marcha lenta

Por isso é importante que, durante esta verificação seja evitado que o refluxo de combustível da evacuação de ar permanente do KSC (central de tratamento do combustível) e a quantidade no estado inicial de partida da válvula limitadora de pressão para o sistema de partida por incandescência não adulterem o resultado da medição.
Por este motivo, é necessário que na medição da quantidade total de fuga através de meios adequados, seja assegurado que apenas a quantidade de fuga eventualmente existente da válvula de limitação de pressão e dos injetores flua para o copo de medição. Não é possível para todos os tipos de motor medir a quantidade total de fuga num único ponto de ligação.

Preparações

A configuração da medição é idêntica à da medição do óleo de fuga dos injetores e da válvula limitadora de pressão (DBV). A diferença reside apenas no fato de ambos os tubos de poliamida são simultaneamente ligados e as quantidades contadas em conjunto.


Apresentação do princípio de configuração de medição para motores D28.


1 Refluxo da válvula limitadora de pressão.
2 Refluxo do óleo de fuga dos injetores.
3 Copo graduado (mín. 1000 ml, divisão 10 ml).


Procedimento de medição e avaliação para todos os tipos de motor

Iniciar a medição apenas quando sair da tubulação medir em ambos os tubos as quantidades constantes de fuga. Para não adulterar o resultado da medição é necessário assegurar que os tubos da medição não sejam mergulhados no combustível.
Procedimento:
– A ficha de ligação do M-Prop à bomba de alta pressão permanece ligada.
– Ligar o motor.
– O motor funciona com rotação excessiva em marcha lenta.
– Medir a quantidade total de fuga.

Quantidade de refluxo a uma velocidade de ralenti, 500 bar de pressão no Rail e motor aquecido.

D0834

aprox. 50 ml por minuto


Neste método de medição, conforme anteriormente referido, é verificada a quantidade de fuga da válvula limitadora de pressão e dos injetores, com o motor em marcha lenta. Uma quantidade de refluxo muito elevada indica assim uma falha na área dos injetores ou uma válvula de limitação de pressão não estanque. Por este motivo, é necessário que, em medições individuais, a DBV e os injetores sejam verificados separadamente.
Nas bombas de alta pressão lubrificadas á combustível existe perigo de uma medição errada! Ao proceder à verificação da quantidade total de fuga é importante que o refluxo (ligação «OUT») da bomba de alta pressão para o depósito de combustível se encontre ligado e que o combustível extravasado seja conduzido através de uma tubulação separada para um recipiente de recolha. Caso não seja respeitado este procedimento, o resultado da medição não será correto.
A ligação OUT na bomba não pode ser selada, pois caso contrário, a bomba deixa de ser lubrificada.
Nota: Nos motores com pouca quilometragem, em 90% dos casos é relativamente simples solucionar uma quantidade de fuga acrescida: Afrouxar todas as fixações de tubos de pressão e injetores e, em seguida, voltar a apertar as mesmas de acordo com as instruções. Caso este trabalho não solucione o problema, efetuar medições individuais de quantidades de fuga e substituir as tubulações afetadas.

Caso o "Valor de saída do regulador da pressão do Common Rail” na monitorização "Pressões" se altere após a partida do motor, isto indicará uma fuga na área do bocal de pressão. Exemplo: Imediatamente após a partida do motor, o valor é de aprox. 8% e, após um curto espaço de tempo de funcionamento do motor este valor aumenta para 25%. Se este valor sofrer uma alteração mínima, a fuga estará localizada provavelmente num ou mais injetores. Em caso de reparação do valor de tempo (veículos com uma quilometragem elevada): Uma quantidade de fuga menor que 100 ml/min é admissível, dados que não provoca um registro de falha.
Verificar a estanqueidade da válvula limitadora de pressão.

Independentemente do fato de o motor se encontrar ou não em funcionamento, ou rodar apenas através do motor de partida: A DBV tem de ser estanque, com o motor em funcionamento apenas é admissível a saída de algumas gotas de combustível. Uma quantidade de refluxo com a DBV aberta (~850 bar) só é admissível em caso de falha (p. ex. falha na regulação da pressão do Common Rail), caso contrário a DBV deverá ser classificada como danificada.
Para poder avaliar melhor a estanqueidade da DBV é recomenda a realização do teste de alta pressão. O teste pode ser iniciado com o MCO-08 e funciona a partir do EDC7 versão de software V34.1.

Procedimento:
A tubulação de retorno na DBV deverá ser removida e fechada no veículo. Do conjunto de artigos da mala de ensaio CR deverá ser retirada uma mangueira com reservatório de recolha, que deverá ser ligada à DBV. O teste de alta pressão deverá ser então ativado, e deverá ser verificado se a DBV permanece estanque durante a duração do teste.

Medição individual da quantidade de fuga D08.

Se durante a medição da quantidade total de fuga for detectada uma quantidade de fuga excessiva e a DBV não tiver uma fuga (é admissível um pequeno número de gotas de combustível), então é muito provável que a falha resida num único injetor, por vezes também em dois injetores. Ligando separadamente os injetores é possível determinar em que cilindro existe uma fuga na zona dos injetores.
Em seguida é descrito o procedimento. Se num D08 forem desmontadas tubos de alta pressão, estas deverão ser substituídas juntamente com as abraçadeiras.

Procedimento:
– O chicote de cabos do injetor na unidade de comando EDC7 permanece ligado.
– A ficha de ligação do M-Prop à bomba de alta pressão permanece ligada.
– Desmontar a tubulação de alta pressão do primeiro cilindro.
– Fechar a ligação do primeiro cilindro no Common Rail.
– Fechar a ligação da tubulação de pressão devido ao risco de infiltração de sujidade, utilizando o casquilho de proteção.
– Ligar o motor.
– O motor funciona com rotação excessiva em marcha lenta.
– Medir a quantidade de óleo de fuga.

Repetir o procedimento tantas vezes quanto necessário para cada cilindro individual, até que a quantidade de óleo de fuga se reduza significativamente ou se normalize, ou seja, até que a quantidade de refluxo a 600 1/min corresponda ao valor normal do respectivo tipo de motor (consultar avaliação da medição da quantidade total de fuga).
O cilindro no qual a quantidade de óleo de fuga se normalizou será aquele que apresenta falta de estanqueidade. Se a quantidade diminuir em vários cilindros, estes serão co-responsáveis pela falta de estanqueidade.
Em seguida limpar cuidadosamente o bocal de fecho.


Medição do fluxo de descarga da bomba de alta pressão.

Através deste método de medição é verificada a potência de fluxo da bomba de alta pressão com a pressão do Common Rail de 800 a 900 bar.

Preparações:
A configuração da medição é idêntica à da medição da quantidade total de fuga. A diferença reside apenas no fato de a unidade de medição ser desconectada. No motor D08, para realizar o teste é necessário prolongar as tubos do refluxo dos injetores e das válvulas limitadoras de pressão e conduzir as mesmas para o copo graduado. Iniciar a medição apenas quando saírem quantidades de fuga constantes de ambas as tubos a medir. Para não adulterar o resultado da medição é necessário assegurar que os tubos da medição não sejam mergulhados no combustível.
Preparar um copo graduado suficientemente grande (mín. 1000 ml, divisão de 10 ml). Cuidado: Os tubos de combustível e o copo graduado sofrem aquecimento.

Princípio de Medição:
Com o M-Prop ligado, a bomba de alta pressão funciona com a máxima potência de fluxo. Desta forma, a pressão do Common Rail aumenta rapidamente para 1800 bar e a válvula limitadora de pressão abre-se. O motor funciona então com a pressão do Common Rail regulada pela DBV (válvula limitadora de pressão) de 800 a 900 bar. A quantidade em excesso descarregada pela bomba de alta pressão flui através da DBV para o copo graduado. Além disso, flui também aprox. 60 ml/min de combustível de cada injetor.

Procedimento:
– Desligar a ficha de ligação do M-Prop à bomba de alta pressão.
– Ligar o motor.
– Medir a quantidade total de óleo de fuga da DBV e injetores, em marcha lenta.


Avaliação dos resultados da medição:

Tipo de motor

Bomba de alta pressão

Quantidade mínima de fluxo da bomba de alta pressão em marcha lenta

D0836

CP3.3 / CP3.3NH

650 ml/min

D0836

CP3.4

750 ml/min

D0834

CP3.3 / CP3.3NH

880 ml/min*)




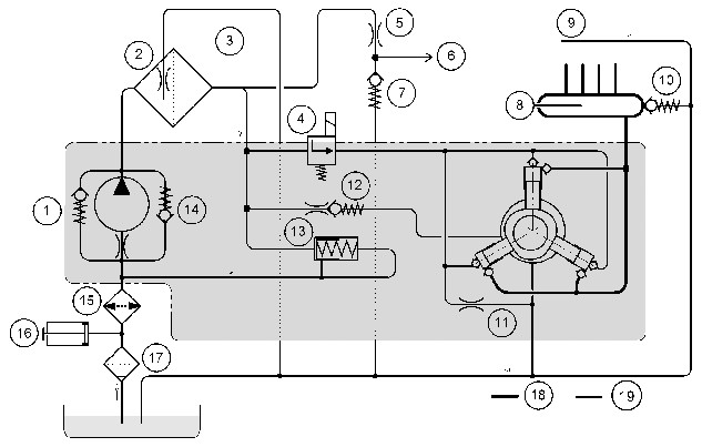
1 - Válvula de Controle de pressão da bomba de engrenagens (Δp = 10,4 - 13 bar)
2 - Placa de refrigeração (opcional)
3 - Evacuação permanente de ar no KSC (central de tratamento do combustível)
4 - Filtro com separação de água (pressão de rompimento maior que 15 bar)
5 - Ligação do sistema de partida por incandescência
6 - Orifício de estrangulamento do sistema de partida por incandescência
7 - Unidade de medição válvula proporcional de combustível MProp
8 - Retorno do injetor (tubo de fuga do óleo)
9 - Acumulador de alta pressão (Common Rail) com ligação aos injetores
10 - Válvula limitadora de pressão com dois níveis
11 - Válvula de manutenção de pressão do refluxo do injetor (Δp = 1,2....1,4 bar)
12 - Retentor de ordem zero
13 - Válvula de descarga (Δp = 5,5 bar)
14 - Válvula de manutenção de pressão do sistema de partida por incandescência Ponto de medição 1
15 - Válvula bypass (Δp = 0,15 bar)
16 - Pré-filtro
17 - Bomba manual
18 - Tubo de alta pressão
19 - Tubo de baixa pressão


Esquema geral de combustível:
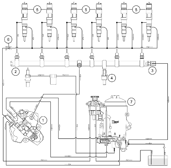
Bomba de alta pressão lubrificada a combustível CP3 4+.



1 - Válvula de Controle de pressão da bomba de engrenagens (Δp = 10,4 - 13 bar).
2 - Evacuação permanente de ar no KSC (central de tratamento do combustível).
3 - Filtro com separação de água (pressão de rompimento maior que 16 bar).
4 - Unidade de medição válvula proporcional de combustível MProp.
5 - Orifício de estrangulamento do sistema de partida por incandescência.
6 - Ligação do sistema de partida por incandescência.
7 - Válvula de manutenção de pressão do sistema de partida por incandescência.
8 - Acumulador de alta pressão (Common Rail) com ligação aos injetores.
9 - Retorno do injetor (tubo de fuga do óleo).
10 - Válvula limitadora de pressão com dois níveis.
11 - Retentor de ordem zero.
12 - Válvula de travagem 2,8 bar, lubrificação da bomba de alta pressão.
13 - Válvula de descarga (Δp = 5,5 bar).
14 - Válvula bypass (Δp = 0,15 bar).
15 - Placa de refrigeração (opcional).
16 - Bomba manual.
17 - Pré-filtro.
18 - Tubo de alta pressão.
19 - Tubo de baixa pressão.


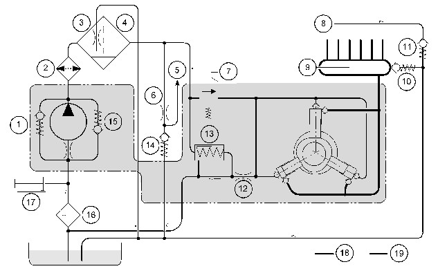
Esquema de combustível, motor D0836 LF Euro 3




1- Bomba de alta pressão de quantidade regulada CP 3.4.
2- Acumulador de alta pressão (Rail).
3- Válvula limitadora de pressão.
4- Sensor de pressão do Rail.
5- Injetores.
6- Válvula de descarga 1,2...1,4 bar.
7- Centro de Assistência do Combustível KSC (central de tratamento do combustível).


Esquema de combustível, motor D0836 LFL Euro 3/4




1- Bomba de alta pressão de quantidade regulada CP 3.3.
2- Acumulador de alta pressão (Common Rail).
3-Válvula limitadora de pressão.
4- Sensor de pressão do Common Rail.
5- Injetores.
6- Válvula de descarga 1,2...1,3 bar.
7- Centro de Assistência do Combustível KSC (central de tratamento do combustível).

Topo da Página